Меню
8 (800) 350-02-05
(Бесплатно по России)
8 (499) 350-10-59
(Москва)
8 (8172) 58-01-05
(Вологда)

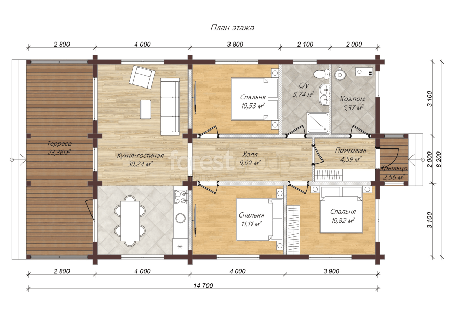
Проект Дома К-1004

Обратно в каталог
Общая площадь:
113 м2
Количество спален:
3
Количество санузлов:
1
Материал:
Клееный брус
8 (499) 350-10-59

Спрашивайте, мы на связи

1 этаж
В любой из наших проектов можно внести изменения внутренней планировки и дополнений к внешнему ввиду.
Общая площадь:
113 м2
Количество спален:
3
Количество санузлов:
1
Материал:
Клееный брус
Обсудить проект
План 1 этажа
Стоимость дома рассчитывается
По запросу
Можно в ипотеку
Можно
в ипотеку
Материнский капитал
Материнский
капитал
Гарантия на работы
Гарантия
на работы
Вологодский лес
Вологодский
лес
Вышлем смету на e-mail
Обзор наших домов
Рассчитать стоимость проекта
Заполните все поля и наш менеджер свяжется с вами в ближайшее время.
Отправить заявку
Нажимая кнопку, я принимаю
политику обработки персональных данных.
Дневник
Строительства
Видеообзоры
наших домов
Все новости
Дом из бревна диаметром 280 мм: сборка в посёлке с типовой застройкой
Дом из оцилиндрованного бревна по проекту Ц-1004
Быстровозводимый каркасный дом 55 кв м для постоянного проживания и для дачи. Заводские панели.
Производство клеёного бруса. Взгляд изнутри. Как я его вижу.
Проект Ц-546. 260 мм. Плита. Гибкая черепица
Похожие проекты
Проект Дома К-1010 КОМПЛЕКТАЦИЯ: фундамент+ кровля металлочерепица

- Проект;
- Фундамент: жб забивные сваи 200*200*3м;
- Оцилиндрованное бревно 220мм;
- Кровля металлочерепица Grand Line 0,45 мм;
- Доставка;
- Монтаж

По запросу
№ 1010
16.1x11.9
268.9 м2
Проект Дома К-601 КОМПЛЕКТАЦИЯ: фундамент+крыша под ключ

- Проект;
- Фундамент: ЖБ забивные сваи 200*200*3м;
- Комплект клееного бруса 185h*200мм;
- Кровля металлочерепица Grand Line + утепление 200мм;
- Монтаж;
- Доставка;

от 7 980 000
№ 601
7,6х10,8
127 м2
Проект Дома К-548 КОМПЛЕКТАЦИЯ: ХОЛОДНЫЙ КОНТУР (фундамент+ кровля металлочерепица)
  • - Проект;
  • - Фундамент: ЖБ забивные сваи 200-200-3м;
  • - Комплект клееного бруса 185h*200мм;
  • - Кровля металлочерепица Grand Line 0.45 мм;
  • - Монтаж;
  • - Доставка;
По запросу
№ 548
9.7х10.2
136 м2
Проект Дома К-1001 КОМПЛЕКТАЦИЯ: фундамент+крыша под ключ

- Проект;
- Фундамент: ЖБ забивные сваи 200*200*3м;
- Комплект клееного бруса 185h*160мм;
- Кровля металлочерепица Grand Line + утепление 200мм;
- Монтаж;
- Доставка;

от 5 082 000
№ 700
8.1х12.3
78 м2
Проект Дома К-603 КОМПЛЕКТАЦИЯ: ФУНДАМЕНТ + КРОВЛЯ ПОД КЛЮЧ
  • Проект;
  • Фундамент: ЖБ забивные сваи 200-200-3м;
  • Комплект клееного бруса 185h*200мм;
  • Кровля металлочерепица Grand Line + утепление крыши 200мм;
  • Монтаж;
  • Доставка;
По запросу
№ 603
13,5х10,1
9966 м2
Проект Дома К-1011 КОМПЛЕКТАЦИЯ: фундамент+ кровля металлочерепица

- Проект;
- Фундамент: жб забивные сваи 200*200*3м;
- Оцилиндрованное бревно 220мм;
- Кровля металлочерепица Grand Line 0,45 мм;
- Доставка;
- Монтаж

По запросу
№ 1011
15.5x8.5
187.3 м2
Проект Дома К-582 КОМПЛЕКТАЦИЯ: ФУНДАМЕНТ + КРОВЛЯ ПОД КЛЮЧ + ОКНА
  • Проект;
  • Фундамент: ЖБ забивные сваи 200-200-3м;
  • Комплект клееного бруса 185h*200мм;
  • Окна/Дверь входная;
  • Кровля металлочерепица Grand Line + утепление крыши 200мм;
  • Монтаж;
  • Доставка;
По запросу
№ 582
19х11,2
178 м2
Проект Дома К-1002 КОМПЛЕКТАЦИЯ: фундамент+крыша под ключ

- Проект;
- Фундамент: ЖБ забивные сваи 200*200*3м;
- Комплект клееного бруса 185h*160мм;
- Кровля металлочерепица Grand Line + утепление 200мм;
- Монтаж;
- Доставка;

от 5 641 650
№ 701
12.5х11.2
99 м2
Мы используем cookie. Это позволяет нам анализировать взаимодействие посетителей с сайтом и делать его лучше. Продолжая пользоваться сайтом, вы соглашаетесь с использованием файлов cookie.
Закрыть