Меню
8 (800) 350-02-05
(Бесплатно по России)
8 (499) 350-10-59
(Москва)
8 (8172) 58-01-05
(Вологда)

Проект Дома П-763

Обратно в каталог
Общая площадь:
78 м2
Гарантия:
5 лет
Количество спален:
2
Количество санузлов:
1
Материал:
Термированный брус
8 (499) 350-10-59

Спрашивайте, мы на связи

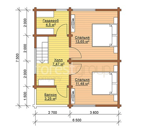
1 этаж
2 этаж
В любой из наших проектов можно внести изменения внутренней планировки и дополнений к внешнему ввиду.
Общая площадь:
78 м2
Гарантия:
5 лет
Количество спален:
2
Количество санузлов:
1
Материал:
Термированный брус
Обсудить проект
План 1 этажа
Стоимость дома рассчитывается
По запросу
Можно в ипотеку
Можно
в ипотеку
Материнский капитал
Материнский
капитал
Гарантия на работы
Гарантия
на работы
Вологодский лес
Вологодский
лес
Вышлем смету на e-mail
Обзор наших домов

Цена по запросу

В цену включено: ФУНДАМЕНТ + КРОВЛЯ МЕТАЛЛОЧЕРЕПИЦА
Проектная документация
Фундамент
Стены и перекрытия
Крыша
Входит в стоимость
Вышлем смету на e-mail
Железобетонные забивные сваи 200*200/3000мм
Описание
Геодезические работы:
разбивка осей, нивелировка, привязка дома на участке
С 30.20 ЖБ СВАЯ 200*200/3000ММ
Пластина с ушами 1200*200/250*250 мм
Обвязка из бруса 200*200 мм
Доставка и установка свай
Все расходные и сопутствующие материалы необходимые для установки сваи включены
Рассчитать стоимость проекта
Заполните все поля и наш менеджер свяжется с вами в ближайшее время.
Отправить заявку
Нажимая кнопку, я принимаю
политику обработки персональных данных.
Дневник
Строительства
Видеообзоры
наших домов
Все новости
Ц-679 дом из оцилиндрованного бревна 240мм
Готовые панели заводского изготовления
Строим дом из оцилиндрованного бревна
Производство. Начало сезона 2025. Зимний лес. Часть 1
Дома из оцилиндрованного бревна. Группа Форест.
Похожие проекты
Проект Дома П-742 КОМПЛЕКТАЦИЯ: ФУНДАМЕНТ + КРОВЛЯ МЕТАЛЛОЧЕРЕПИЦА

В стоимость включено:

- Проект;
- Фундамент: жб забивные сваи 200*200*3м;
- Профилированный брус камерной сушки сечение 140*190мм;
- Кровля металлочерепица Grand Line 0,45 мм - шоколад;
- Доставка;
- Монтаж

По запросу
№ 742
11,5х14,2
113 м2
Проект Дома П-748 КОМПЛЕКТАЦИЯ: ФУНДАМЕНТ + КРОВЛЯ МЕТАЛЛОЧЕРЕПИЦА

В стоимость включено:

- Проект;
- Фундамент: жб забивные сваи 200*200*3м;
- Профилированный брус камерной сушки сечение 140*190мм;
- Кровля металлочерепица Grand Line 0,45 мм - шоколад;
- Доставка;
- Монтаж

По запросу
№ 748
12х11,5
181 м2
Проект Дома П-1010 КОМПЛЕКТАЦИЯ: фундамент+ кровля металлочерепица

- Проект;
- Фундамент: жб забивные сваи 200*200*3м;
- Оцилиндрованное бревно 220мм;
- Кровля металлочерепица Grand Line 0,45 мм;
- Доставка;
- Монтаж

По запросу
№ 1010
16.1x11.9
268.9 м2
Проект Дома П-743 КОМПЛЕКТАЦИЯ: ФУНДАМЕНТ + КРОВЛЯ МЕТАЛЛОЧЕРЕПИЦА
<p><b>В стоимость включено: </b></p>

<p>
- Проект;<br>
- Фундамент: жб забивные сваи 200*200*3м;<br>
- Профилированный брус камерной сушки сечение 140*190мм;<br>
- Кровля металлочерепица Grand Line 0,45 мм - шоколад;<br>
- Доставка;<br>
- Монтаж</p>
По запросу
№ 743
12,5х9
147 м2
Проект Дома П-705 КОМПЛЕКТАЦИЯ: ФУНДАМЕНТ + КРОВЛЯ МЕТАЛЛОЧЕРЕПИЦА
По запросу
№ 705
9х10,5
114 м2
Проект Дома П-749 КОМПЛЕКТАЦИЯ: ФУНДАМЕНТ + КРОВЛЯ МЕТАЛЛОЧЕРЕПИЦА

В стоимость включено:

- Проект;
- Фундамент: жб забивные сваи 200*200*3м;
- Профилированный брус камерной сушки сечение 140*190мм;
- Кровля металлочерепица Grand Line 0,45 мм - шоколад;
- Доставка;
- Монтаж

По запросу
№ 749
8,7х10,7
158 м2
Проект Дома П-1001 КОМПЛЕКТАЦИЯ: фундамент+крыша под ключ

- Проект;
- Фундамент: ЖБ забивные сваи 200*200*3м;
- Кровля металлочерепица Grand Line + утепление 200мм;
- Монтаж;
- Доставка;

По запросу
№ 700
8.1х12.3
78 м2
Проект Дома П-754 КОМПЛЕКТАЦИЯ: ФУНДАМЕНТ + КРОВЛЯ МЕТАЛЛОЧЕРЕПИЦА

В стоимость включено:

- Проект;
- Фундамент: жб забивные сваи 200*200*3м;
- Профилированный брус камерной сушки сечение 140*190мм;
- Кровля металлочерепица Grand Line 0,45 мм - шоколад;
- Доставка;
- Монтаж

По запросу
№ 754
8,7х10,8
142 м2
Проект Дома П-750 КОМПЛЕКТАЦИЯ: ФУНДАМЕНТ + КРОВЛЯ МЕТАЛЛОЧЕРЕПИЦА

В стоимость включено:

- Проект;
- Фундамент: жб забивные сваи 200*200*3м;
- Профилированный брус камерной сушки сечение 140*190мм;
- Кровля металлочерепица Grand Line 0,45 мм - шоколад;
- Доставка;
- Монтаж

По запросу
№ 750
9,5х8
133 м2
Проект Дома П-753 КОМПЛЕКТАЦИЯ: ФУНДАМЕНТ + КРОВЛЯ МЕТАЛЛОЧЕРЕПИЦА

В стоимость включено:

- Проект;
- Фундамент: жб забивные сваи 200*200*3м;
- Профилированный брус камерной сушки сечение 140*190мм;
- Кровля металлочерепица Grand Line 0,45 мм - шоколад;
- Доставка;
- Монтаж

По запросу
№ 753
10,7х9
148 м2
Проект Дома П-766 КОМПЛЕКТАЦИЯ: ФУНДАМЕНТ + КРОВЛЯ МЕТАЛЛОЧЕРЕПИЦА

В стоимость включено:

- Проект;
- Фундамент: жб забивные сваи 200*200*3м;
- Профилированный брус камерной сушки сечение 140*190мм;
- Кровля металлочерепица Grand Line 0,45 мм - шоколад;
- Доставка;
- Монтаж

По запросу
№ 766
13,3х9,1
210 м2
Проект Дома П-752 КОМПЛЕКТАЦИЯ: ФУНДАМЕНТ + КРОВЛЯ МЕТАЛЛОЧЕРЕПИЦА

В стоимость включено:

- Проект;
- Фундамент: жб забивные сваи 200*200*3м;
- Профилированный брус камерной сушки сечение 140*190мм;
- Кровля металлочерепица Grand Line 0,45 мм - шоколад;
- Доставка;
- Монтаж

По запросу
№ 752
11,5х11,5
110 м2
Проект Дома П-1011 КОМПЛЕКТАЦИЯ: фундамент+ кровля металлочерепица

- Проект;
- Фундамент: жб забивные сваи 200*200*3м;
- Оцилиндрованное бревно 220мм;
- Кровля металлочерепица Grand Line 0,45 мм;
- Доставка;
- Монтаж

По запросу
№ 1011
15.5x8.5
187.3 м2
Проект Дома П-755 КОМПЛЕКТАЦИЯ: ФУНДАМЕНТ + КРОВЛЯ МЕТАЛЛОЧЕРЕПИЦА

В стоимость включено:

- Проект;
- Фундамент: жб забивные сваи 200*200*3м;
- Профилированный брус камерной сушки сечение 140*190мм;
- Кровля металлочерепица Grand Line 0,45 мм - шоколад;
- Доставка;
- Монтаж

По запросу
№ 755
14,5х10
123 м2
Проект Дома П-745 КОМПЛЕКТАЦИЯ: ФУНДАМЕНТ + КРОВЛЯ МЕТАЛЛОЧЕРЕПИЦА

В стоимость включено:

- Проект;
- Фундамент: жб забивные сваи 200*200*3м;
- Профилированный брус камерной сушки сечение 140*190мм;
- Кровля металлочерепица Grand Line 0,45 мм - шоколад;
- Доставка;
- Монтаж

По запросу
№ 745
12,6х14,7
228 м2
Проект Дома П-1002 КОМПЛЕКТАЦИЯ: фундамент+крыша под ключ

- Проект;
- Фундамент: ЖБ забивные сваи 200*200*3м;
- Кровля металлочерепица Grand Line + утепление 200мм;
- Монтаж;
- Доставка;

По запросу
№ 701
12.5х11.2
99 м2
Мы используем cookie. Это позволяет нам анализировать взаимодействие посетителей с сайтом и делать его лучше. Продолжая пользоваться сайтом, вы соглашаетесь с использованием файлов cookie.
Закрыть