Меню
8 (800) 350-02-05
(Бесплатно по России)
8 (499) 350-10-59
(Москва)
8 (8172) 58-01-05
(Вологда)

Проект Дома Ц-679

Обратно в каталог
Общая площадь:
127 м2
Гарантия:
5 лет
Количество спален:
1
Количество санузлов:
1
Материал:
Оцилиндрованное бревно
1 этаж
2 этаж
В любой из наших проектов можно внести изменения внутренней планировки и дополнений к внешнему ввиду.
Общая площадь:
127 м2
Гарантия:
5 лет
Количество спален:
1
Количество санузлов:
1
Материал:
Оцилиндрованное бревно
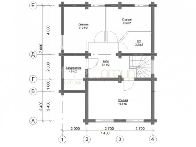
План 1 этажа
Стоимость дома
в данной комплектации
4 789 050
Что входит в стоимость?
Мы рассчитаем стоимость в любой комплектации под ваши пожелания
Можно в ипотеку
Можно
в ипотеку
Материнский капитал
Материнский
капитал
Вологодский лес
Вологодский
лес
Двухэтажный коттедж с большой террасой из бревна
Обзор наших домов

4 789 050

В цену включено: фундамент+кровля металлочерепица
Вышлем смету на e-mail
Проектная документация
Фундамент
Стены и перекрытия
Крыша
Входит в стоимость
Железобетонные забивные сваи 200*200/3000мм
Описание
Геодезические работы:
разбивка осей, нивелировка, привязка дома на участке
С 30.20 ЖБ СВАЯ 200*200/3000ММ
Пластина с ушами 1200*200/250*250 мм
Обвязка из бруса 200*200 мм
Доставка и установка свай
Все расходные и сопутствующие материалы необходимые для установки сваи включены
Рассчитать стоимость проекта
Заполните все поля и наш менеджер свяжется с вами в ближайшее время.
Отправить заявку
Нажимая кнопку, я принимаю
политику обработки персональных данных.
Дневник
Строительства
Видеообзоры
наших домов
Все новости
Строительство деревянного дома
Готовые панели заводского изготовления
Обновили деревянный дом. Покраска. Шлифовка. Герметик.
Проект Ц 900 под металл. Быстрый обзор
Проект дома из оцилиндрованного бревна Ц-1004
Похожие проекты
Проект Дома Ц-532 КОМПЛЕКТАЦИЯ: фундамент + кровля металлочерепица

- Проект;
- Оцилиндрованное бревно 220 мм;
- Кровля металлочерепица;
- Фундамент: жб забивные сваи 200*200*3м - Доставка;
- МОНТАЖ;

от 4 257 750
№ 532
9,7х12
115 м2
Проект Дома Ц-543 КОМПЛЕКТАЦИЯ: фундамент + КРОВЛЯ МЕТАЛЛОЧЕРЕПИЦА

- Проект;
- Фундамент: жб забивные сваи 200*200*3м;
- Оцилиндрованное бревно 220мм;
- Кровля металлочерепица Grand Line 0,45 мм;
- Доставка;
- Монтаж

от 4 924 500
№ 543
9,9х10,4
140 м2
Одноэтажный дом из оцилиндрованного бревна Ц-1012 КОМПЛЕКТАЦИЯ: фундамент+кровля металлочерепица

- Проект;
- Оцилиндрованное бревно 220мм;
- Кровля металлочерепица Grand Line 0,45 мм;
- Доставка;
- Монтаж

от 5 074 650
№ 1012
10х16,5
133 м2
Проект Дома Ц-525 КОМПЛЕКТАЦИЯ: фундамент + кровля металлочерепица

- Проект;
- Фундамент: жб забивные сваи 200*200*3м;
- Оцилиндрованное бревно 220мм;
- Кровля металлочерепица; - Доставка;
- Монтаж

от 6 759 900
№ 525
10,6х13,5
216 м2
Дом из оцилиндрованного бревна Ц-542 КОМПЛЕКТАЦИЯ: фундамент + КРОВЛЯ МЕТАЛЛОЧЕРЕПИЦА

- Проект;
- Фундамент: жб забивные сваи 200*200*3м;
- Оцилиндрованное бревно 240мм;
- Кровля металлочерепица Grand Line 0,45 мм;
- Доставка;
- Монтаж

от 4 364 850
№ 542
12,8х9,1
128 м2
Одноэтажный дом из оцилиндрованного бревна Ц-1013 КОМПЛЕКТАЦИЯ: фундамент+кровля металлочерепица

- Проект;
- Оцилиндрованное бревно 220мм;
- Кровля металлочерепица Grand Line 0,45 мм;
- Доставка;
- Монтаж

от 4 806 900
№ 1013
11.5х12
98 м2
Проект Дома из бревна Ц-1006 КОМПЛЕКТАЦИЯ: фундамент+ кровля металлочерепица

- Проект;
- Фундамент: жб забивные сваи 200*200*3м;
- Оцилиндрованное бревно 220мм;
- Кровля металлочерепица Grand Line 0,45 мм;
- Доставка;
- Монтаж

от 4 268 250
№ 1006
12,5х8,5
95 м2
Проект Дома Ц-551 КОМПЛЕКТАЦИЯ: фундамент + кровля металлочерепица

- Проект;
- Оцилиндрованное бревно 220 мм;
- Кровля металлочерепица;
- Фундамент: жб забивные сваи 200*200*3м;
- Доставка;
- МОНТАЖ;

от 5 182 800
№ 551
11,5х9
150 м2
Проект Дома из бревна Ц-1019 КОМПЛЕКТАЦИЯ: фундамент+ кровля металлочерепица

- Проект;
- Фундамент: жб забивные сваи 200*200*3м;
- Оцилиндрованное бревно 220мм;
- Кровля металлочерепица Grand Line 0,45 мм;
- Доставка;
- Монтаж

от 5 360 250
№ 1019
14х10.8
135.6 м2
Проект Дома Ц-535 КОМПЛЕКТАЦИЯ: фундамент + КРОВЛЯ МЕТАЛЛОЧЕРЕПИЦА

- Проект;
- Фундамент: жб забивные сваи 200*200*3м;
- Оцилиндрованное бревно 220мм;
- Кровля металлочерепица Grand Line 0,45 мм;
- Доставка;
- Монтаж

от 5 008 500
№ 535
8,7х10,8
142 м2
Дом из оцилиндрованного бревна Ц-527 КОМПЛЕКТАЦИЯ: фундамент + КРОВЛЯ МЕТАЛЛОЧЕРЕПИЦА

- Проект;
- Оцилиндрованное бревно 220 мм;
- Фундамент: жб забивные сваи 200*200*3м;
- Кровля металлочерепица;
- Доставка;
- МОНТАЖ;

от 3 791 550
№ 527
8,2х8,2
118 м2
Проект Дома из бревна Ц-611 КОМПЛЕКТАЦИЯ: фундамент + КРОВЛЯ МЕТАЛЛОЧЕРЕПИЦА

- Проект;
- Фундамент: жб забивные сваи 200*200*3м;
- Оцилиндрованное бревно 220мм;
- Кровля металлочерепица Grand Line 0,45 мм;
- Доставка;
- Монтаж

от 4 603 200
№ 611
8х10
138 м2
Проект Дома Ц-531 КОМПЛЕКТАЦИЯ: фундамент + КРОВЛЯ МЕТАЛЛОЧЕРЕПИЦА

- Проект;
- Фундамент: жб забивные сваи 200*200*3м;
- Оцилиндрованное бревно 220мм;
- Кровля металлочерепица Grand Line 0,45 мм;
- Доставка;
- Монтаж

от 4 112 850
№ 531
9,5х8
133 м2
Проект Дома из бревна Ц-1008 КОМПЛЕКТАЦИЯ: фундамент+кровля металлочерепица

- Проект;
- Оцилиндрованное бревно 220мм;
- Кровля металлочерепица Grand Line 0,45 мм;
- Доставка;
- Монтаж

от 6 038 550
№ 1008
17х11
139 м2
Проект Дома Ц-703 КОМПЛЕКТАЦИЯ: фундамент + КРОВЛЯ МЕТАЛЛОЧЕРЕПИЦА

- Проект;
- Фундамент: жб забивные сваи 200*200*3м;
- Оцилиндрованное бревно 240мм;
- Кровля металлочерепица Grand Line 0,45 мм;
- Доставка;
- Монтаж

от 5 573 400
№ 703
10,8х9,6
208 м2
Проект Дома из бревна Ц-1014 КОМПЛЕКТАЦИЯ: фундамент+ кровля металлочерепица

- Проект;
- Фундамент: жб забивные сваи 200*200*3м;
- Оцилиндрованное бревно 220мм;
- Кровля металлочерепица Grand Line 0,45 мм;
- Доставка;
- Монтаж

от 3 983 700
№ 1014
8,1х12.3
78 м2

Мы используем файлы cookie, а также сервис веб-аналитики Яндекс.Метрика для улучшения работы сайта, анализа трафика и персонализации контента. Продолжая использовать данный сайт, вы даете на это свое согласие. Если вы не хотите использовать файлы cookie, отключите их в настройках браузера.

Подробную информацию можно получить, нажав «Узнать больше».