Меню
8 (800) 350-02-05
(Бесплатно по России)
8 (499) 350-10-59
(Москва)
8 (8172) 58-01-05
(Вологда)

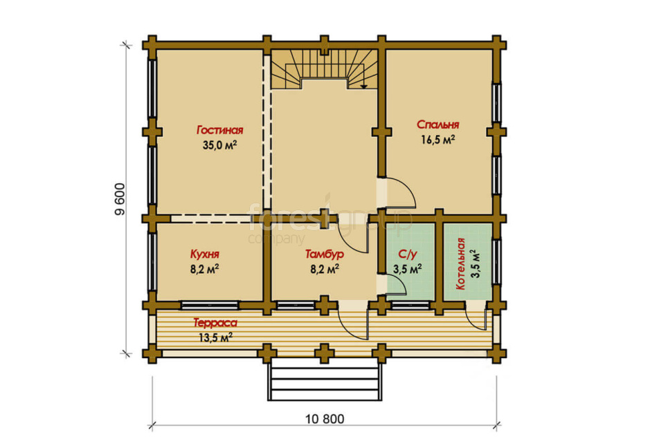
Проект Дома Ц-703

Обратно в каталог
Общая площадь:
208 м2
Гарантия:
5 лет
Количество спален:
3
Количество санузлов:
2
Материал:
Оцилиндрованное бревно
1 этаж
2 этаж
В любой из наших проектов можно внести изменения внутренней планировки и дополнений к внешнему ввиду.
Общая площадь:
208 м2
Гарантия:
5 лет
Количество спален:
3
Количество санузлов:
2
Материал:
Оцилиндрованное бревно
План 1 этажа
Стоимость дома
в данной комплектации
5 573 400
Что входит в стоимость?
Мы рассчитаем стоимость в любой комплектации под ваши пожелания
Можно в ипотеку
Можно
в ипотеку
Материнский капитал
Материнский
капитал
Вологодский лес
Вологодский
лес
Уютный одноэтажный дом из оцилиндрованного бревна
Обзор наших домов

5 573 400

В цену включено: фундамент + КРОВЛЯ МЕТАЛЛОЧЕРЕПИЦА
Вышлем смету на e-mail
Проектная документация
Фундамент
Стены и перекрытия
Крыша
Входит в стоимость
Железобетонные забивные сваи 200*200/3000мм
Описание
Геодезические работы:
разбивка осей, нивелировка, привязка дома на участке
С 30.20 ЖБ СВАЯ 200*200/3000ММ
Пластина с ушами 1200*200/250*250 мм
Обвязка из бруса 200*200 мм
Доставка и установка свай
Все расходные и сопутствующие материалы необходимые для установки сваи включены
Рассчитать стоимость проекта
Заполните все поля и наш менеджер свяжется с вами в ближайшее время.
Отправить заявку
Нажимая кнопку, я принимаю
политику обработки персональных данных.
Дневник
Строительства
Видеообзоры
наших домов
Все новости
Проект Ц-1004
Погрузка
Каркасно-Панельный дом заводского изготовления. Скандинавский тип
Производство. Начало сезона 2025. Зимний лес. Часть 1
Дом из клееного бруса. Первый этап.
Похожие проекты
Проект Дома из бревна Ц-1020 КОМПЛЕКТАЦИЯ: фундамент+ кровля металлочерепица

- Проект;
- Фундамент: жб забивные сваи 200*200*3м;
- Оцилиндрованное бревно 220мм;
- Кровля металлочерепица Grand Line 0,45 мм;
- Доставка;
- Монтаж

от 4 117 050
№ 1020
10х9.5
74.1 м2
Проект дома Ц-1003 КОМПЛЕКТАЦИЯ: фундамент+кровля металлочерепица

- Проект;
- Фундамент: жб забивные сваи 200*200*3м;
- Оцилиндрованное бревно 220мм;
- Кровля металлочерепица Grand Line 0,45 мм;
- Доставка;
- Монтаж

от 4 806 900
№ 1003
13х11,6
113 м2
Проект Дома Ц-554 КОМПЛЕКТАЦИЯ: фундамент+ кровля металлочерепица

- Проект;
- Фундамент: жб забивные сваи 200*200*3м;
- Оцилиндрованное бревно 220мм;
- Кровля металлочерепица Grand Line 0,45 мм;
- Доставка;
- Монтаж

от 4 394 250
№ 554
10,1х9,4
112 м2
Проект Дома из бревна Ц-1023 КОМПЛЕКТАЦИЯ: фундамент+ кровля металлочерепица

- Проект;
- Фундамент: жб забивные сваи 200*200*3м;
- Оцилиндрованное бревно 220мм;
- Кровля металлочерепица Grand Line 0,45 мм;
- Доставка;
- Монтаж

от 4 833 150
№ 1023
16.1x11.9
268.9 м2
Одноэтажный дом из оцилиндрованного бревна Ц-1013 КОМПЛЕКТАЦИЯ: фундамент+кровля металлочерепица

- Проект;
- Оцилиндрованное бревно 220мм;
- Кровля металлочерепица Grand Line 0,45 мм;
- Доставка;
- Монтаж

от 4 806 900
№ 1013
11.5х12
98 м2
Проект Дома из бревна Ц-515 КОМПЛЕКТАЦИЯ: ФУНДАМЕНТ + МЕТАЛЛ

- Проект;
- Фундамент: жб забивные сваи 200*200*3м;
- Оцилиндрованное бревно 240мм;
- Кровля металлочерепица Grand Line 0,45 мм;
- Доставка;
- Монтаж

от 4 449 900
№ 515
8,5х8
114 м2
Одноэтажный деревянный дом Ц-999 КОМПЛЕКТАЦИЯ: фундамент + кровля металлочерепица

- Проект;
- Фундамент: жб забивные сваи 200*200*3м;
- Оцилиндрованное бревно 220мм;
- Кровля металлочерепица Grand Line 0,45 мм;
- Доставка;
- Монтаж

от 3 782 100
№ 999
12х9,5
92 м2
Проект Дома Ц-543 КОМПЛЕКТАЦИЯ: фундамент + КРОВЛЯ МЕТАЛЛОЧЕРЕПИЦА

- Проект;
- Фундамент: жб забивные сваи 200*200*3м;
- Оцилиндрованное бревно 220мм;
- Кровля металлочерепица Grand Line 0,45 мм;
- Доставка;
- Монтаж

от 4 924 500
№ 543
9,9х10,4
140 м2
Двухэтажный дом из бревна Ц-585 КОМПЛЕКТАЦИЯ: фундамент+ кровля металлочерепица

- Проект;
- Фундамент: жб забивные сваи 200*200*3м;
- Оцилиндрованное бревно 220мм;
- Кровля металлочерепица Grand Line 0,45 мм;
- Доставка;
- Монтаж

По запросу
№ 585
7,6х6,8
86 м2
Проект Дома Ц-590 КОМПЛЕКТАЦИЯ: фундамент + кровля металлочерепица

- Проект;
- Оцилиндрованное бревно 220 мм;
- Кровля металлочерепица;
- Фундамент: жб забивные сваи 200*200*3м;
- Доставка;
- МОНТАЖ;

По запросу
№ 590
8х12,5
141 м2
Проект Дома из бревна Ц-1018 КОМПЛЕКТАЦИЯ: фундамент+ кровля металлочерепица

- Проект;
- Фундамент: жб забивные сваи 200*200*3м;
- Оцилиндрованное бревно 220мм;
- Кровля металлочерепица Grand Line 0,45 мм;
- Доставка;
- Монтаж

от 5 337 150
№ 1018
14,5х11.5
136.3 м2
Проект Дома из бревна Ц-1021 КОМПЛЕКТАЦИЯ: фундамент+ кровля металлочерепица

- Проект;
- Фундамент: жб забивные сваи 200*200*3м;
- Оцилиндрованное бревно 220мм;
- Кровля металлочерепица Grand Line 0,45 мм;
- Доставка;
- Монтаж

от 4 833 150
№ 1021
9.8x12.6
100.5 м2
Дом из оцилиндрованного бревна в стиле Лофт Ц-1010 КОМПЛЕКТАЦИЯ: фундамент+кровля металлочерепица

- Проект;
- Оцилиндрованное бревно 220мм;
- Кровля металлочерепица Grand Line 0,45 мм;
- Доставка;
- Монтаж

от 4 849 950
№ 1010
11,8х12
114 м2
Дом из оцилиндрованного бревна Ц-900 КОМПЛЕКТАЦИЯ: фундамент+кровля металлочерепица

- Проект;
- Фундамент: жб забивные сваи 200*200*3м;
- Оцилиндрованное бревно 240мм;
- Кровля металлочерепица Grand Line 0,45 мм;
- Доставка;
- Монтаж

от 5 280 450
№ 900
10,5х14
119 м2
Проект Дома из бревна Ц-1006 КОМПЛЕКТАЦИЯ: фундамент+ кровля металлочерепица

- Проект;
- Фундамент: жб забивные сваи 200*200*3м;
- Оцилиндрованное бревно 220мм;
- Кровля металлочерепица Grand Line 0,45 мм;
- Доставка;
- Монтаж

от 4 268 250
№ 1006
12,5х8,5
95 м2
Проект Дома Ц-1000 КОМПЛЕКТАЦИЯ: фундамент+кровля металлочерепица

- Проект;
- Фундамент: жб забивные сваи 200*200*3м;
- Оцилиндрованное бревно 240мм;
- Кровля металлочерепица Grand Line 0,45 мм;
- Доставка;
- Монтаж

от 4 609 500
№ 1000
10,2х14,7
133 м2

Мы используем файлы cookie, а также сервис веб-аналитики Яндекс.Метрика для улучшения работы сайта, анализа трафика и персонализации контента. Продолжая использовать данный сайт, вы даете на это свое согласие. Если вы не хотите использовать файлы cookie, отключите их в настройках браузера.

Подробную информацию можно получить, нажав «Узнать больше».