Меню
8 (800) 350-02-05
(Бесплатно по России)
8 (499) 350-10-59
(Москва)
8 (8172) 58-01-05
(Вологда)

Проект Дома из бревна Ц-545

Обратно в каталог
Общая площадь:
101 м2
Гарантия:
5 лет
Количество спален:
2
Количество санузлов:
2
Материал:
Оцилиндрованное бревно
1 этаж
2 этаж
В любой из наших проектов можно внести изменения внутренней планировки и дополнений к внешнему ввиду.
Общая площадь:
101 м2
Гарантия:
5 лет
Количество спален:
2
Количество санузлов:
2
Материал:
Оцилиндрованное бревно
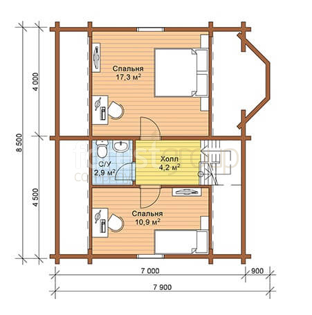
План 1 этажа
Стоимость дома
в данной комплектации
3 822 000
Что входит в стоимость?
Мы рассчитаем стоимость в любой комплектации под ваши пожелания
Можно в ипотеку
Можно
в ипотеку
Материнский капитал
Материнский
капитал
Вологодский лес
Вологодский
лес
Комфортный двухэтажный дом из бревна с большой гостиной, в проекте 2 спальни
Обзор наших домов

3 822 000

В цену включено: ФУНДАМЕНТ+КОВЛЯ МЕТАЛЛОЧЕРЕПИЦА
Вышлем смету на e-mail
Проектная документация
Фундамент
Стены и перекрытия
Крыша
Входит в стоимость
Железобетонные забивные сваи 200*200/3000мм
Описание
Геодезические работы:
разбивка осей, нивелировка, привязка дома на участке
С 30.20 ЖБ СВАЯ 200*200/3000ММ
Пластина с ушами 1200*200/250*250 мм
Обвязка из бруса 200*200 мм
Доставка и установка свай
Все расходные и сопутствующие материалы необходимые для установки сваи включены
Рассчитать стоимость проекта
Заполните все поля и наш менеджер свяжется с вами в ближайшее время.
Отправить заявку
Нажимая кнопку, я принимаю
политику обработки персональных данных.
Дневник
Строительства
Видеообзоры
наших домов
Все новости
Производство. Начало сезона 2025. Зимний лес. Часть 1
каркасно панельный дом обзор
Проект Ц-546. 260 мм. Плита. Гибкая черепица
Обзорное видео по проекту Ц-1004
Обновили деревянный дом. Покраска. Шлифовка. Герметик.
Похожие проекты
Проект Дом баня Ц-538 КОМПЛЕКТАЦИЯ: ФУНДАМЕНТ + КРОВЛЯ МЕТАЛЛОЧЕРЕПИЦА

- Проект;
- Фундамент: жб забивные сваи 200*200*3м;
- Оцилиндрованное бревно 220мм;
- Кровля металлочерепица Grand Line 0,45 мм;
- Доставка;
- Монтаж

от 3 710 700
№ 538
6х8,5
67 м2
Дом из бревна Ц-607 КОМПЛЕКТАЦИЯ: фундамент + КРОВЛЯ МЕТАЛЛОЧЕРЕПИЦА

- Проект;
- Фундамент: жб забивные сваи 150*150*3м;
- Оцилиндрованное бревно 220мм;
- Кровля металлочерепица Grand Line 0,45 мм;
- Доставка;
- Монтаж

от 3 783 150
№ 607
6,5х9,4
91 м2
Проект Дома Ц-530 КОМПЛЕКТАЦИЯ: фундамент + КРОВЛЯ МЕТАЛЛОЧЕРЕПИЦА

- Проект;
- Фундамент: жб забивные сваи 200*200*3м;
- Оцилиндрованное бревно 220мм;
- Кровля металлочерепица Grand Line 0,45 мм;
- Доставка;
- Монтаж

от 5 241 600
№ 530
8,7х10,7
158 м2
Дом из оцилиндрованного бревна в стиле Лофт Ц-1010 КОМПЛЕКТАЦИЯ: фундамент+кровля металлочерепица

- Проект;
- Оцилиндрованное бревно 220мм;
- Кровля металлочерепица Grand Line 0,45 мм;
- Доставка;
- Монтаж

от 4 849 950
№ 1010
11,8х12
114 м2
Дом из оцилиндрованного бревна Ц-524 КОМПЛЕКТАЦИЯ: фундамент + КРОВЛЯ МЕТАЛЛОЧЕРЕПИЦА

- Проект;
- Фундамент: жб забивные сваи 200*200*3м;
- Оцилиндрованное бревно 240мм;
- Кровля металлочерепица Grand Line 0,45 мм;
- Доставка;
- Монтаж

от 5 387 550
№ 524
12,5х9
147 м2
Проект Дома из бревна Ц-1024 КОМПЛЕКТАЦИЯ: фундамент+ кровля металлочерепица

- Проект;
- Фундамент: жб забивные сваи 200*200*3м;
- Оцилиндрованное бревно 220мм;
- Кровля металлочерепица Grand Line 0,45 мм;
- Доставка;
- Монтаж

По запросу
№ 1024
15.5x8.5
187.3 м2
Дом из оцилиндрованного бревна Ц-701 КОМПЛЕКТАЦИЯ: фундамент + КРОВЛЯ МЕТАЛЛОЧЕРЕПИЦА

- Проект;
- Фундамент: жб забивные сваи 150*150*3м;
- Оцилиндрованное бревно 220мм;
- Кровля металлочерепица Grand Line 0,45 мм;
- Доставка;
- Монтаж

от 3 714 000
№ 701
9,6х13,2
102 м2
Проект Дома Ц-526 КОМПЛЕКТАЦИЯ: фундамент + КРОВЛЯ МЕТАЛЛОЧЕРЕПИЦА

- Проект;
- Фундамент: жб забивные сваи 200*200*3м;
- Оцилиндрованное бревно 240мм;
- Кровля металлочерепица Grand Line 0,45 мм;
- Доставка;
- Монтаж

от 6 695 850
№ 526
12,6х14,7
228 м2
Проект Дома из бревна Ц-1008 КОМПЛЕКТАЦИЯ: фундамент+кровля металлочерепица

- Проект;
- Оцилиндрованное бревно 220мм;
- Кровля металлочерепица Grand Line 0,45 мм;
- Доставка;
- Монтаж

от 6 038 550
№ 1008
17х11
139 м2
Одноэтажный дом из оцилиндрованного бревна Ц-1013 КОМПЛЕКТАЦИЯ: фундамент+кровля металлочерепица

- Проект;
- Оцилиндрованное бревно 220мм;
- Кровля металлочерепица Grand Line 0,45 мм;
- Доставка;
- Монтаж

от 4 806 900
№ 1013
11.5х12
98 м2
Проект Дома из бревна Ц-611 КОМПЛЕКТАЦИЯ: фундамент + КРОВЛЯ МЕТАЛЛОЧЕРЕПИЦА

- Проект;
- Фундамент: жб забивные сваи 200*200*3м;
- Оцилиндрованное бревно 220мм;
- Кровля металлочерепица Grand Line 0,45 мм;
- Доставка;
- Монтаж

от 4 603 200
№ 611
8х10
138 м2
Проект Дома из бревна Ц-1019 КОМПЛЕКТАЦИЯ: фундамент+ кровля металлочерепица

- Проект;
- Фундамент: жб забивные сваи 200*200*3м;
- Оцилиндрованное бревно 220мм;
- Кровля металлочерепица Grand Line 0,45 мм;
- Доставка;
- Монтаж

от 5 360 250
№ 1019
14х10.8
135.6 м2

Мы используем файлы cookie, а также сервис веб-аналитики Яндекс.Метрика для улучшения работы сайта, анализа трафика и персонализации контента. Продолжая использовать данный сайт, вы даете на это свое согласие. Если вы не хотите использовать файлы cookie, отключите их в настройках браузера.

Подробную информацию можно получить, нажав «Узнать больше».