Меню
8 (800) 350-02-05
(Бесплатно по России)
8 (499) 350-10-59
(Москва)
8 (8172) 58-01-05
(Вологда)

Дом из оцилиндрованного бревна Ц-701

Обратно в каталог
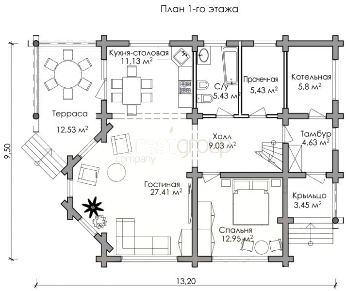
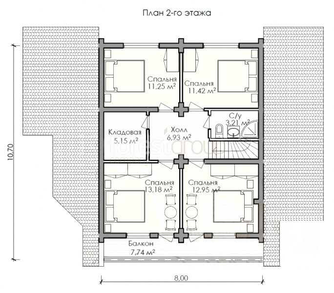
Общая площадь:
102 м2
Гарантия:
5 лет
Количество спален:
5
Количество санузлов:
2
Материал:
Оцилиндрованное бревно
1 этаж
2 этаж
В любой из наших проектов можно внести изменения внутренней планировки и дополнений к внешнему ввиду.
Общая площадь:
102 м2
Гарантия:
5 лет
Количество спален:
5
Количество санузлов:
2
Материал:
Оцилиндрованное бревно
План 1 этажа
Стоимость дома
в данной комплектации
3 714 000
Что входит в стоимость?
Мы рассчитаем стоимость в любой комплектации под ваши пожелания
Можно в ипотеку
Можно
в ипотеку
Материнский капитал
Материнский
капитал
Вологодский лес
Вологодский
лес
Двухэтажный коттедж из бревна с 5 спальнями
Обзор наших домов

3 714 000

В цену включено: фундамент + КРОВЛЯ МЕТАЛЛОЧЕРЕПИЦА
Вышлем смету на e-mail
Проектная документация
Фундамент
Стены и перекрытия
Крыша
Входит в стоимость
Железобетонные забивные сваи
Описание
Геодезические работы:
разбивка осей, нивелировка, привязка дома на участке
С 30.15 ЖБ СВАЯ 150*150/3000ММ
Пластина с ушами 1200*200/250*250 мм
Обвязка из бруса 200*200 мм
Доставка и установка свай
Все расходные и сопутствующие материалы необходимые для установки сваи включены
Рассчитать стоимость проекта
Заполните все поля и наш менеджер свяжется с вами в ближайшее время.
Отправить заявку
Нажимая кнопку, я принимаю
политику обработки персональных данных.
Дневник
Строительства
Видеообзоры
наших домов
Все новости
Дом из оцилиндрованного бревна. Строим зимой. Диаметр 260 мм. Обзор.
Дом. Оцилиндрованнон бревно 300 мм
Каркасно-панельный дом: обзор внутри
МХМ панели. Многослойный хвойный массив.
Проект Ц-1004
Похожие проекты
Проект Дома из бревна Ц-1022 КОМПЛЕКТАЦИЯ: фундамент+ кровля металлочерепица

- Проект;
- Фундамент: жб забивные сваи 200*200*3м;
- Оцилиндрованное бревно 220мм;
- Кровля металлочерепица Grand Line 0,45 мм;
- Доставка;
- Монтаж

от 5 207 678
№ 1022
10.30x11.8
111.4 м2
Проект Дома Ц-572 КОМПЛЕКТАЦИЯ: фундамент + кровля металлочерепица

- Проект;
- Фундамент: жб забивные сваи 200*200*3м;
- Оцилиндрованное бревно 240мм;
- Кровля металлочерепица Grand Line 0,45 мм;
- Доставка;
- Монтаж

По запросу
№ 572
9,5х7,4
127 м2
Проект Бани Ц-539 КОМПЛЕКТАЦИЯ: фундамент + КРОВЛЯ МЕТАЛЛОЧЕРЕПИЦА

- Проект;
- Фундамент: жб забивные сваи 200*200*3м;
- Оцилиндрованное бревно 220мм;
- Кровля металлочерепица Grand Line 0,45 мм;
- Доставка;
- Монтаж

от 3 090 150
№ 539
7х9
124 м2
Проект Дома Ц-532 КОМПЛЕКТАЦИЯ: фундамент + кровля металлочерепица

- Проект;
- Оцилиндрованное бревно 220 мм;
- Кровля металлочерепица;
- Фундамент: жб забивные сваи 200*200*3м - Доставка;
- МОНТАЖ;

от 4 257 750
№ 532
9,7х12
115 м2
Проект Дома Ц-551 КОМПЛЕКТАЦИЯ: фундамент + кровля металлочерепица

- Проект;
- Оцилиндрованное бревно 220 мм;
- Кровля металлочерепица;
- Фундамент: жб забивные сваи 200*200*3м;
- Доставка;
- МОНТАЖ;

от 5 182 800
№ 551
11,5х9
150 м2
Проект Дома Ц-706 КОМПЛЕКТАЦИЯ: фундамент+ кровля металлочерепица

- Проект;
- Фундамент: жб забивные сваи 200*200*3м;
- Оцилиндрованное бревно 220мм;
- Кровля металлочерепица Grand Line 0,45 мм;
- Доставка;
- Монтаж

По запросу
№ 706
8,6х9,1
57 м2
Проект Дома из бревна Ц-545 КОМПЛЕКТАЦИЯ: ФУНДАМЕНТ+КОВЛЯ МЕТАЛЛОЧЕРЕПИЦА

- Проект;
- Фундамент: жб забивные сваи 200*200*3м;
- Оцилиндрованное бревно 240мм;
- Кровля металлочерепица; - Доставка;
- Монтаж

от 3 822 000
№ 545
8,5х9,1
101 м2
Проект Дома Ц-590 КОМПЛЕКТАЦИЯ: фундамент + кровля металлочерепица

- Проект;
- Оцилиндрованное бревно 220 мм;
- Кровля металлочерепица;
- Фундамент: жб забивные сваи 200*200*3м;
- Доставка;
- МОНТАЖ;

По запросу
№ 590
8х12,5
141 м2
Проект Дома Ц-592 КОМПЛЕКТАЦИЯ: фундамент + кровля металлочерепица

- Проект;
- Оцилиндрованное бревно 220 мм;
- Кровля металлочерепица;
- Фундамент: жб забивные сваи 200*200*3м;
- Доставка;
- МОНТАЖ;

По запросу
№ 592
9,5х10,5
84 м2
Проект дома Ц-1003 КОМПЛЕКТАЦИЯ: фундамент+кровля металлочерепица

- Проект;
- Фундамент: жб забивные сваи 200*200*3м;
- Оцилиндрованное бревно 220мм;
- Кровля металлочерепица Grand Line 0,45 мм;
- Доставка;
- Монтаж

от 4 806 900
№ 1003
13х11,6
113 м2
Проект Дома из бревна Ц-1019 КОМПЛЕКТАЦИЯ: фундамент+ кровля металлочерепица

- Проект;
- Фундамент: жб забивные сваи 200*200*3м;
- Оцилиндрованное бревно 220мм;
- Кровля металлочерепица Grand Line 0,45 мм;
- Доставка;
- Монтаж

от 5 360 250
№ 1019
14х10.8
135.6 м2
Проект Дома Ц-543 КОМПЛЕКТАЦИЯ: фундамент + КРОВЛЯ МЕТАЛЛОЧЕРЕПИЦА

- Проект;
- Фундамент: жб забивные сваи 200*200*3м;
- Оцилиндрованное бревно 220мм;
- Кровля металлочерепица Grand Line 0,45 мм;
- Доставка;
- Монтаж

от 4 924 500
№ 543
9,9х10,4
140 м2
Проект Дома Ц-526 КОМПЛЕКТАЦИЯ: фундамент + КРОВЛЯ МЕТАЛЛОЧЕРЕПИЦА

- Проект;
- Фундамент: жб забивные сваи 200*200*3м;
- Оцилиндрованное бревно 240мм;
- Кровля металлочерепица Grand Line 0,45 мм;
- Доставка;
- Монтаж

от 6 695 850
№ 526
12,6х14,7
228 м2
Дом из бревна Ц-607 КОМПЛЕКТАЦИЯ: фундамент + КРОВЛЯ МЕТАЛЛОЧЕРЕПИЦА

- Проект;
- Фундамент: жб забивные сваи 150*150*3м;
- Оцилиндрованное бревно 220мм;
- Кровля металлочерепица Grand Line 0,45 мм;
- Доставка;
- Монтаж

от 3 783 150
№ 607
6,5х9,4
91 м2
Проект Дома Ц-600 КОМПЛЕКТАЦИЯ: ФУНДАМЕНТ + КРОВЛЯ МЕТАЛЛОЧЕРЕПИЦА

- Проект;
- Фундамент: жб забивные сваи 200*200*3м;
- Оцилиндрованное бревно 220мм;
- Кровля металлочерепица Grand Line 0,45 мм;
- Доставка;
- Монтаж

По запросу
№ 600
12х12
103 м2
Дом из оцилиндрованного бревна Ц-529 КОМПЛЕКТАЦИЯ: фундамент + КРОВЛЯ МЕТАЛЛОЧЕРЕПИЦА

- Проект;
- Фундамент: жб забивные сваи 200*200*3м;
- Оцилиндрованное бревно 240мм;
- Кровля металлочерепица Grand Line 0,45 мм;
- Доставка;
- Монтаж

от 5 916 750
№ 529
12х11,5
181 м2

Мы используем файлы cookie, а также сервис веб-аналитики Яндекс.Метрика для улучшения работы сайта, анализа трафика и персонализации контента. Продолжая использовать данный сайт, вы даете на это свое согласие. Если вы не хотите использовать файлы cookie, отключите их в настройках браузера.

Подробную информацию можно получить, нажав «Узнать больше».