Меню
8 (800) 350-02-05
(Бесплатно по России)
8 (499) 350-10-59
(Москва)
8 (8172) 58-01-05
(Вологда)

Проект Дома Ц-683

Обратно в каталог
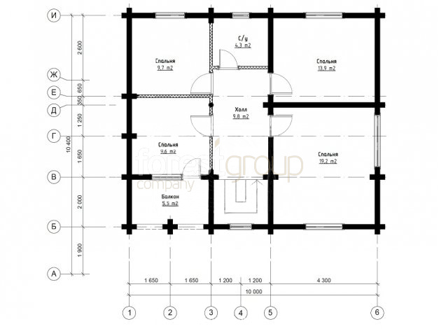
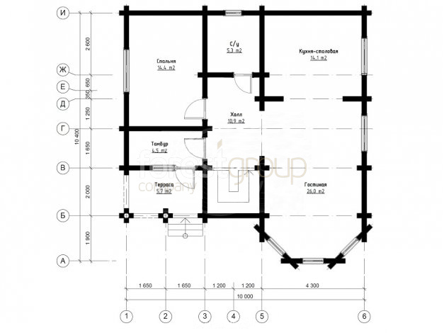
Общая площадь:
133 м2
Гарантия:
5 лет
Количество спален:
5
Количество санузлов:
2
Материал:
Оцилиндрованное бревно
1 этаж
2 этаж
В любой из наших проектов можно внести изменения внутренней планировки и дополнений к внешнему ввиду.
Общая площадь:
133 м2
Гарантия:
5 лет
Количество спален:
5
Количество санузлов:
2
Материал:
Оцилиндрованное бревно
План 1 этажа
Стоимость дома рассчитывается
По запросу
Можно в ипотеку
Можно
в ипотеку
Материнский капитал
Материнский
капитал
Вологодский лес
Вологодский
лес
Двухэтажный дом из бревна, с большой гостиной, 5 спальнями, террасой
Вышлем смету на e-mail
Обзор наших домов

Цена по запросу

В цену включено: ФУНДАМЕНТ + КРОВЛЯ МЕТАЛЛОЧЕРЕПИЦА
Вышлем смету на e-mail
Фундамент
Стены и перекрытия
Крыша
Входит в стоимость
Железобетонные забивные сваи 200*200/3000мм
Описание
Геодезические работы:
разбивка осей, нивелировка, привязка дома на участке
С 30.20 ЖБ СВАЯ 200*200/3000ММ
Пластина с ушами 1200*200/250*250 мм
Обвязка из бруса 200*200 мм
Доставка и установка свай
Все расходные и сопутствующие материалы необходимые для установки сваи включены
Рассчитать стоимость проекта
Заполните все поля и наш менеджер свяжется с вами в ближайшее время.
Отправить заявку
Нажимая кнопку, я принимаю
политику обработки персональных данных.
Дневник
Строительства
Видеообзоры
наших домов
Все новости
Производство клеёного бруса. Взгляд изнутри. Как я его вижу.
Каркасно-панельный дом: тёплый контур за считаные дни
280 мм. Комплекс домов в Москве
Комплексная застройка из клееного бруса. От забора до ландшафта.
Проект Ц-526 диаметр 260 мм
Похожие проекты
Проект Дома из бревна Ц-1015 КОМПЛЕКТАЦИЯ: фундамент+ кровля металлочерепица

- Проект;
- Фундамент: жб забивные сваи 200*200*3м;
- Оцилиндрованное бревно 220мм;
- Кровля металлочерепица Grand Line 0,45 мм;
- Доставка;
- Монтаж

от 4 803 750
№ 1015
11,2х12.0
99 м2
Проект Дома Ц-592 КОМПЛЕКТАЦИЯ: фундамент + кровля металлочерепица

- Проект;
- Оцилиндрованное бревно 220 мм;
- Кровля металлочерепица;
- Фундамент: жб забивные сваи 200*200*3м;
- Доставка;
- МОНТАЖ;

По запросу
№ 592
9,5х10,5
84 м2
Проект Дома Ц-531 КОМПЛЕКТАЦИЯ: фундамент + КРОВЛЯ МЕТАЛЛОЧЕРЕПИЦА

- Проект;
- Фундамент: жб забивные сваи 200*200*3м;
- Оцилиндрованное бревно 220мм;
- Кровля металлочерепица Grand Line 0,45 мм;
- Доставка;
- Монтаж

от 4 112 850
№ 531
9,5х8
133 м2
Проект Дома Бани Ц-523 КОМПЛЕКТАЦИЯ: ФУНДАМЕНТ + КРОВЛЯ МЕТАЛЛОЧЕРЕПИЦА

- Проект;
- Фундамент: жб забивные сваи 200*200*3м;
- Оцилиндрованное бревно 220мм;
- Кровля металлочерепица Grand Line 0,45 мм;
- Доставка;
- Монтаж

от 4 876 200
№ 523
11,5х14,2
113 м2
Проект Бани Ц-539 КОМПЛЕКТАЦИЯ: фундамент + КРОВЛЯ МЕТАЛЛОЧЕРЕПИЦА

- Проект;
- Фундамент: жб забивные сваи 200*200*3м;
- Оцилиндрованное бревно 220мм;
- Кровля металлочерепица Grand Line 0,45 мм;
- Доставка;
- Монтаж

от 3 090 150
№ 539
7х9
124 м2
Проект Дома Ц-634 КОМПЛЕКТАЦИЯ: ФУНДАМЕНТ + КРОВЛЯ МЕТАЛЛОЧЕРЕПИЦА

- Проект;
- Фундамент: жб забивные сваи 200*200*3м;
- Оцилиндрованное бревно 240мм;
- Кровля металлочерепица Grand Line 0,45 мм;
- Доставка;
- Монтаж

По запросу
№ 634
10,6х14,9
200 м2
Проект дома Ц-1002 КОМПЛЕКТАЦИЯ: фундамент+кровля металлочерепица

- Проект;
- Фундамент: ЖБ забивные сваи 200*200*3м;
- Комплект клееного бруса 185h*200мм;
- Кровля металлочерепица Grand Line + утепление 200мм;
- Монтаж;
- Доставка;

от 5 461 050
№ 1002
13X12,6
137 м2
Проект Дома Ц-555 КОМПЛЕКТАЦИЯ: фундамент + кровля металлочерепица

- Проект;
- Оцилиндрованное бревно 220 мм;
- Кровля металлочерепица;
- Фундамент: жб забивные сваи 200*200*3м;
- Доставка;
- МОНТАЖ;

По запросу
№ 555
9,5х7,5
50 м2
Проект Дома Ц-600 КОМПЛЕКТАЦИЯ: ФУНДАМЕНТ + КРОВЛЯ МЕТАЛЛОЧЕРЕПИЦА

- Проект;
- Фундамент: жб забивные сваи 200*200*3м;
- Оцилиндрованное бревно 220мм;
- Кровля металлочерепица Grand Line 0,45 мм;
- Доставка;
- Монтаж

По запросу
№ 600
12х12
103 м2
Проект Дома Ц-703 КОМПЛЕКТАЦИЯ: фундамент + КРОВЛЯ МЕТАЛЛОЧЕРЕПИЦА

- Проект;
- Фундамент: жб забивные сваи 200*200*3м;
- Оцилиндрованное бревно 240мм;
- Кровля металлочерепица Grand Line 0,45 мм;
- Доставка;
- Монтаж

от 5 573 400
№ 703
10,8х9,6
208 м2
Дом из оцилиндрованного бревна в стиле Лофт Ц-1010 КОМПЛЕКТАЦИЯ: фундамент+кровля металлочерепица

- Проект;
- Оцилиндрованное бревно 220мм;
- Кровля металлочерепица Grand Line 0,45 мм;
- Доставка;
- Монтаж

от 4 849 950
№ 1010
11,8х12
114 м2
Проект Дома Ц-695 КОМПЛЕКТАЦИЯ: фундамент + КРОВЛЯ МЕТАЛЛОЧЕРЕПИЦА

- Проект;
- Фундамент: жб забивные сваи 200*200*3м;
- Оцилиндрованное бревно 220мм;
- Кровля металлочерепица Grand Line 0,45 мм;
- Доставка;
- Монтаж

от 3 804 150
№ 695
8х8
106 м2
Проект Дома Ц-543 КОМПЛЕКТАЦИЯ: фундамент + КРОВЛЯ МЕТАЛЛОЧЕРЕПИЦА

- Проект;
- Фундамент: жб забивные сваи 200*200*3м;
- Оцилиндрованное бревно 220мм;
- Кровля металлочерепица Grand Line 0,45 мм;
- Доставка;
- Монтаж

от 4 924 500
№ 543
9,9х10,4
140 м2
Проект Дома Ц-1001 КОМПЛЕКТАЦИЯ: фундамент+кровля металлочерепица

- Проект;
- Фундамент: жб забивные сваи 200*200*3м;
- Оцилиндрованное бревно 220мм;
- Кровля металлочерепица Grand Line 0,45 мм;
- Доставка;
- Монтаж

от 4 205 250
№ 1001
9х8
105 м2
Проект Дома Ц-626 КОМПЛЕКТАЦИЯ: фундамент + КРОВЛЯ МЕТАЛЛОЧЕРЕПИЦА

- Проект;
- Фундамент: жб забивные сваи 200*200*3м;
- Оцилиндрованное бревно 220мм;
- Кровля металлочерепица Grand Line 0,45 мм;
- Доставка;
- Монтаж

По запросу
№ 626
8,6х13
150 м2
Проект Дома из бревна Ц-1021 КОМПЛЕКТАЦИЯ: фундамент+ кровля металлочерепица

- Проект;
- Фундамент: жб забивные сваи 200*200*3м;
- Оцилиндрованное бревно 220мм;
- Кровля металлочерепица Grand Line 0,45 мм;
- Доставка;
- Монтаж

от 4 833 150
№ 1021
9.8x12.6
100.5 м2

Мы используем файлы cookie, а также сервис веб-аналитики Яндекс.Метрика для улучшения работы сайта, анализа трафика и персонализации контента. Продолжая использовать данный сайт, вы даете на это свое согласие. Если вы не хотите использовать файлы cookie, отключите их в настройках браузера.

Подробную информацию можно получить, нажав «Узнать больше».