Меню
8 (800) 350-02-05
(Бесплатно по России)
8 (499) 350-10-59
(Москва)
8 (8172) 58-01-05
(Вологда)

Дом из бревна Ц-544

Обратно в каталог
Общая площадь:
78 м2
Гарантия:
5 лет
Количество спален:
2
Количество санузлов:
1
Материал:
Оцилиндрованное бревно
1 этаж
2 этаж
В любой из наших проектов можно внести изменения внутренней планировки и дополнений к внешнему ввиду.
Общая площадь:
78 м2
Гарантия:
5 лет
Количество спален:
2
Количество санузлов:
1
Материал:
Оцилиндрованное бревно
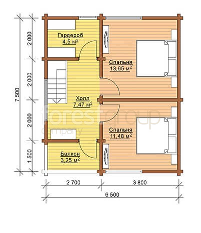
План 1 этажа
Стоимость дома
в данной комплектации
3 626 700
Что входит в стоимость?
Мы рассчитаем стоимость в любой комплектации под ваши пожелания
Можно в ипотеку
Можно
в ипотеку
Материнский капитал
Материнский
капитал
Вологодский лес
Вологодский
лес
Двухэтажный дом с террасой, гостиной и 2 спальнями
Обзор наших домов

3 626 700

В цену включено: ФУНДАМЕНТ + КРОВЛЯ МЕТАЛЛОЧЕРЕПИЦА
Вышлем смету на e-mail
Проектная документация
Фундамент
Стены и перекрытия
Крыша
Входит в стоимость
Железобетонные забивные сваи 200*200/3000мм
Описание
Геодезические работы:
разбивка осей, нивелировка, привязка дома на участке
С 30.20 ЖБ СВАЯ 200*200/3000ММ
Пластина с ушами 1200*200/250*250 мм
Обвязка из бруса 200*200 мм
Доставка и установка свай
Все расходные и сопутствующие материалы необходимые для установки сваи включены
Рассчитать стоимость проекта
Заполните все поля и наш менеджер свяжется с вами в ближайшее время.
Отправить заявку
Нажимая кнопку, я принимаю
политику обработки персональных данных.
Дневник
Строительства
Видеообзоры
наших домов
Все новости
Готовые панели заводского изготовления
Небольшой дом из оцилиндрованного бревна для постоянного проживания.
Проект из оцилиндрованного бревна Ц-704
Одноэтажный каркасный дом для постоянного проживания или для дачи. Зависит от комплектации.
Дом из бревна – смотрим, как он устроен
Похожие проекты
Проект Дома из бревна Ц-528 КОМПЛЕКТАЦИЯ: фундамент + КРОВЛЯ МЕТАЛЛОЧЕРЕПИЦА

- Проект;
- Фундамент: жб забивные сваи 200*200*3м;
- Оцилиндрованное бревно 220мм;
- Кровля металлочерепица Grand Line 0,45 мм;
- Доставка;
- Монтаж

от 5 940 900
№ 528
13,6х9,9
178 м2
Дом из оцилиндрованного бревна Ц-542 КОМПЛЕКТАЦИЯ: фундамент + КРОВЛЯ МЕТАЛЛОЧЕРЕПИЦА

- Проект;
- Фундамент: жб забивные сваи 200*200*3м;
- Оцилиндрованное бревно 240мм;
- Кровля металлочерепица Grand Line 0,45 мм;
- Доставка;
- Монтаж

от 4 364 850
№ 542
12,8х9,1
128 м2
Проект Бани из оцилиндрованного бревна Ц-522 КОМПЛЕКТАЦИЯ: фундамент + кровля металлочерепица

- Проект;
- Оцилиндрованное бревно 220 мм;
- Кровля металлочерепица;
- фундамент жб забивные сваи 200*200*3м;
- Доставка;
- МОНТАЖ;

По запросу
№ 522
7х8,2
94 м2
Проект Дома Ц-541 КОМПЛЕКТАЦИЯ: фундамент + КРОВЛЯ МЕТАЛЛОЧЕРЕПИЦА

- Проект;
- Фундамент: жб забивные сваи 200*200*3м;
- Оцилиндрованное бревно 220мм;
- Кровля металлочерепица Grand Line 0,45 мм;
- Доставка;
- Монтаж

от 5 110 350
№ 541
9х12
152 м2
Проект Дома из бревна Ц-1022 КОМПЛЕКТАЦИЯ: фундамент+ кровля металлочерепица

- Проект;
- Фундамент: жб забивные сваи 200*200*3м;
- Оцилиндрованное бревно 220мм;
- Кровля металлочерепица Grand Line 0,45 мм;
- Доставка;
- Монтаж

от 5 207 678
№ 1022
10.30x11.8
111.4 м2
Проект Дома из бревна Ц-1018 КОМПЛЕКТАЦИЯ: фундамент+ кровля металлочерепица

- Проект;
- Фундамент: жб забивные сваи 200*200*3м;
- Оцилиндрованное бревно 220мм;
- Кровля металлочерепица Grand Line 0,45 мм;
- Доставка;
- Монтаж

от 5 337 150
№ 1018
14,5х11.5
136.3 м2
Проект Бани Ц-539 КОМПЛЕКТАЦИЯ: фундамент + КРОВЛЯ МЕТАЛЛОЧЕРЕПИЦА

- Проект;
- Фундамент: жб забивные сваи 200*200*3м;
- Оцилиндрованное бревно 220мм;
- Кровля металлочерепица Grand Line 0,45 мм;
- Доставка;
- Монтаж

от 3 090 150
№ 539
7х9
124 м2
Проект Дома Ц-1009 КОМПЛЕКТАЦИЯ: фундамент+кровля металлочерепица

- Проект;
- Оцилиндрованное бревно 220мм;
- Кровля металлочерепица Grand Line 0,45 мм;
- Доставка;
- Монтаж

от 5 443 200
№ 1009
15,4х10,2
140 м2
Проект дома Ц-1003 КОМПЛЕКТАЦИЯ: фундамент+кровля металлочерепица

- Проект;
- Фундамент: жб забивные сваи 200*200*3м;
- Оцилиндрованное бревно 220мм;
- Кровля металлочерепица Grand Line 0,45 мм;
- Доставка;
- Монтаж

от 4 806 900
№ 1003
13х11,6
113 м2
Проект Дома Ц-551 КОМПЛЕКТАЦИЯ: фундамент + кровля металлочерепица

- Проект;
- Оцилиндрованное бревно 220 мм;
- Кровля металлочерепица;
- Фундамент: жб забивные сваи 200*200*3м;
- Доставка;
- МОНТАЖ;

от 5 182 800
№ 551
11,5х9
150 м2
Проект Дома из бревна Ц-1019 КОМПЛЕКТАЦИЯ: фундамент+ кровля металлочерепица

- Проект;
- Фундамент: жб забивные сваи 200*200*3м;
- Оцилиндрованное бревно 220мм;
- Кровля металлочерепица Grand Line 0,45 мм;
- Доставка;
- Монтаж

от 5 360 250
№ 1019
14х10.8
135.6 м2
Проект Дома Ц-623 КОМПЛЕКТАЦИЯ: фундамент + КРОВЛЯ МЕТАЛЛОЧЕРЕПИЦА

- Проект;
- Фундамент: жб забивные сваи 200*200*3м;
- Оцилиндрованное бревно 220мм;
- Кровля металлочерепица Grand Line 0,45 мм;
- Доставка;
- Монтаж

от 4 370 100
№ 623
8,1х9
134 м2
Дом из оцилиндрованного бревна Ц-588 КОМПЛЕКТАЦИЯ: ВРЕМЕННАЯ КРОВЛЯ (РУБЕРОИД)

- Проект;
- Оцилиндрованное бревно 220 мм;
- Кровля временная: Покрытие РУБЕРОИД;
- Доставка;
- МОНТАЖ;

от 2 732 000
№ 588
8,5х11
101 м2
Проект Дома Ц-600 КОМПЛЕКТАЦИЯ: ФУНДАМЕНТ + КРОВЛЯ МЕТАЛЛОЧЕРЕПИЦА

- Проект;
- Фундамент: жб забивные сваи 200*200*3м;
- Оцилиндрованное бревно 220мм;
- Кровля металлочерепица Grand Line 0,45 мм;
- Доставка;
- Монтаж

По запросу
№ 600
12х12
103 м2
Проект Дома из бревна Ц-548 КОМПЛЕКТАЦИЯ: фундамент + кровля металлочерепица

- Проект;
- Фундамент: жб забивные сваи 200*200*3м;
- Оцилиндрованное бревно 220мм;
- Кровля металлочерепица Grand Line 0,45 мм;
- Доставка;
- Монтаж

от 2 481 150
№ 548
5,6х5,6
55 м2
Дом из оцилиндрованного бревна Ц-701 КОМПЛЕКТАЦИЯ: фундамент + КРОВЛЯ МЕТАЛЛОЧЕРЕПИЦА

- Проект;
- Фундамент: жб забивные сваи 150*150*3м;
- Оцилиндрованное бревно 220мм;
- Кровля металлочерепица Grand Line 0,45 мм;
- Доставка;
- Монтаж

от 3 714 000
№ 701
9,6х13,2
102 м2

Мы используем файлы cookie, а также сервис веб-аналитики Яндекс.Метрика для улучшения работы сайта, анализа трафика и персонализации контента. Продолжая использовать данный сайт, вы даете на это свое согласие. Если вы не хотите использовать файлы cookie, отключите их в настройках браузера.

Подробную информацию можно получить, нажав «Узнать больше».