Меню
8 (800) 350-02-05
(Бесплатно по России)
8 (499) 350-10-59
(Москва)
8 (8172) 58-01-05
(Вологда)

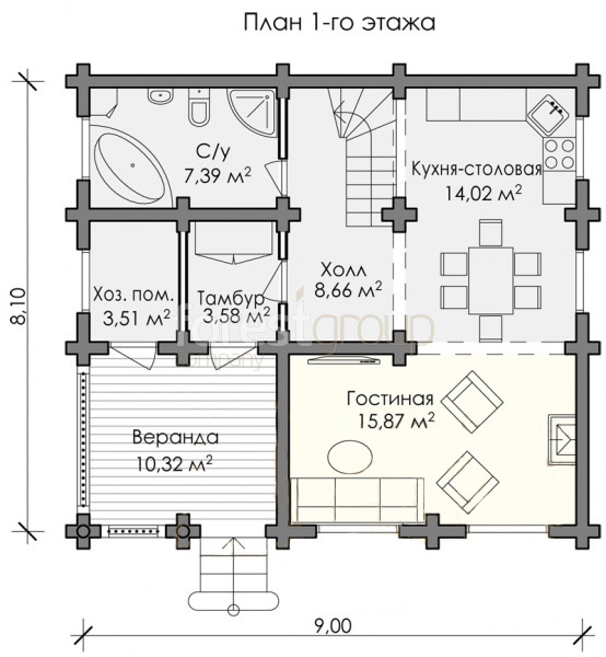
Проект Дома Ц-623

Обратно в каталог
Общая площадь:
134 м2
Гарантия:
5 лет
Количество спален:
3
Количество санузлов:
1
Материал:
Оцилиндрованное бревно
1 этаж
2 этаж
В любой из наших проектов можно внести изменения внутренней планировки и дополнений к внешнему ввиду.
Общая площадь:
134 м2
Гарантия:
5 лет
Количество спален:
3
Количество санузлов:
1
Материал:
Оцилиндрованное бревно
План 1 этажа
Стоимость дома
в данной комплектации
4 370 100
Что входит в стоимость?
Мы рассчитаем стоимость в любой комплектации под ваши пожелания
Можно в ипотеку
Можно
в ипотеку
Материнский капитал
Материнский
капитал
Вологодский лес
Вологодский
лес
Двухэтажный дом из бревна с 3 спальнями
Обзор наших домов

4 370 100

В цену включено: фундамент + КРОВЛЯ МЕТАЛЛОЧЕРЕПИЦА
Вышлем смету на e-mail
Проектная документация
Фундамент
Стены и перекрытия
Крыша
Входит в стоимость
Железобетонные забивные сваи 200*200/3000мм
Описание
Геодезические работы:
разбивка осей, нивелировка, привязка дома на участке
С 30.20 ЖБ СВАЯ 200*200/3000ММ
Пластина с ушами 1200*200/250*250 мм
Обвязка из бруса 200*200 мм
Доставка и установка свай
Все расходные и сопутствующие материалы необходимые для установки сваи включены
Рассчитать стоимость проекта
Заполните все поля и наш менеджер свяжется с вами в ближайшее время.
Отправить заявку
Нажимая кнопку, я принимаю
политику обработки персональных данных.
Дневник
Строительства
Видеообзоры
наших домов
Все новости
Дом из оцилиндрованного бревна. Обзор.
Каркасно-Панельный дом заводского изготовления. Скандинавский тип
Проект из оцилиндрованного бревна Ц-524
Строим дом из клеёного бруса. Первый этап. МО. Ноябрь 2023 г.
Обзорное видео по проекту Ц-1004
Похожие проекты
Проект Дома из бревна Ц-545 КОМПЛЕКТАЦИЯ: ФУНДАМЕНТ+КОВЛЯ МЕТАЛЛОЧЕРЕПИЦА

- Проект;
- Фундамент: жб забивные сваи 200*200*3м;
- Оцилиндрованное бревно 240мм;
- Кровля металлочерепица; - Доставка;
- Монтаж

от 3 822 000
№ 545
8,5х9,1
101 м2
Проект Дома Ц-526 КОМПЛЕКТАЦИЯ: фундамент + КРОВЛЯ МЕТАЛЛОЧЕРЕПИЦА

- Проект;
- Фундамент: жб забивные сваи 200*200*3м;
- Оцилиндрованное бревно 240мм;
- Кровля металлочерепица Grand Line 0,45 мм;
- Доставка;
- Монтаж

от 6 695 850
№ 526
12,6х14,7
228 м2
Проект Дома Ц-535 КОМПЛЕКТАЦИЯ: фундамент + КРОВЛЯ МЕТАЛЛОЧЕРЕПИЦА

- Проект;
- Фундамент: жб забивные сваи 200*200*3м;
- Оцилиндрованное бревно 220мм;
- Кровля металлочерепица Grand Line 0,45 мм;
- Доставка;
- Монтаж

от 5 008 500
№ 535
8,7х10,8
142 м2
Проект Дома Ц-679 КОМПЛЕКТАЦИЯ: фундамент+кровля металлочерепица

- Проект;
- Фундамент: жб забивные сваи 200*200*3м;
- Оцилиндрованное бревно 240мм;
- Кровля металлочерепица Grand Line 0,45 мм;
- Доставка;
- Монтаж

от 4 789 050
№ 679
10,8х10,4
127 м2
Дом из оцилиндрованного бревна в стиле Лофт Ц-1010 КОМПЛЕКТАЦИЯ: фундамент+кровля металлочерепица

- Проект;
- Оцилиндрованное бревно 220мм;
- Кровля металлочерепица Grand Line 0,45 мм;
- Доставка;
- Монтаж

от 4 849 950
№ 1010
11,8х12
114 м2
Двухэтажный дом из бревна Ц-585 КОМПЛЕКТАЦИЯ: фундамент+ кровля металлочерепица

- Проект;
- Фундамент: жб забивные сваи 200*200*3м;
- Оцилиндрованное бревно 220мм;
- Кровля металлочерепица Grand Line 0,45 мм;
- Доставка;
- Монтаж

По запросу
№ 585
7,6х6,8
86 м2
Проект Дома Ц-549 КОМПЛЕКТАЦИЯ: фундамент + КРОВЛЯ МЕТАЛЛОЧЕРЕПИЦА

- Проект;
- Фундамент: жб забивные сваи 200*200*3м;
- Оцилиндрованное бревно 220мм;
- Кровля металлочерепица Grand Line 0,45 мм;
- Доставка;
- Монтаж

от 5 487 300
№ 549
13,3х9,1
210 м2
Проект Дома Ц-1001 КОМПЛЕКТАЦИЯ: фундамент+кровля металлочерепица

- Проект;
- Фундамент: жб забивные сваи 200*200*3м;
- Оцилиндрованное бревно 220мм;
- Кровля металлочерепица Grand Line 0,45 мм;
- Доставка;
- Монтаж

от 4 205 250
№ 1001
9х8
105 м2
Проект Дома из бревна Ц-1008 КОМПЛЕКТАЦИЯ: фундамент+кровля металлочерепица

- Проект;
- Оцилиндрованное бревно 220мм;
- Кровля металлочерепица Grand Line 0,45 мм;
- Доставка;
- Монтаж

от 6 038 550
№ 1008
17х11
139 м2
Проект дома Ц-1002 КОМПЛЕКТАЦИЯ: фундамент+кровля металлочерепица

- Проект;
- Фундамент: ЖБ забивные сваи 200*200*3м;
- Комплект клееного бруса 185h*200мм;
- Кровля металлочерепица Grand Line + утепление 200мм;
- Монтаж;
- Доставка;

от 5 461 050
№ 1002
13X12,6
137 м2
Проект Дома из бревна Ц-1024 КОМПЛЕКТАЦИЯ: фундамент+ кровля металлочерепица

- Проект;
- Фундамент: жб забивные сваи 200*200*3м;
- Оцилиндрованное бревно 220мм;
- Кровля металлочерепица Grand Line 0,45 мм;
- Доставка;
- Монтаж

По запросу
№ 1024
15.5x8.5
187.3 м2
Проект Дома Ц-1000 КОМПЛЕКТАЦИЯ: фундамент+кровля металлочерепица

- Проект;
- Фундамент: жб забивные сваи 200*200*3м;
- Оцилиндрованное бревно 240мм;
- Кровля металлочерепица Grand Line 0,45 мм;
- Доставка;
- Монтаж

от 4 609 500
№ 1000
10,2х14,7
133 м2
Дом из оцилиндрованного бревна Ц-527 КОМПЛЕКТАЦИЯ: фундамент + КРОВЛЯ МЕТАЛЛОЧЕРЕПИЦА

- Проект;
- Оцилиндрованное бревно 220 мм;
- Фундамент: жб забивные сваи 200*200*3м;
- Кровля металлочерепица;
- Доставка;
- МОНТАЖ;

от 3 791 550
№ 527
8,2х8,2
118 м2
Проект Дома Ц-555 КОМПЛЕКТАЦИЯ: фундамент + кровля металлочерепица

- Проект;
- Оцилиндрованное бревно 220 мм;
- Кровля металлочерепица;
- Фундамент: жб забивные сваи 200*200*3м;
- Доставка;
- МОНТАЖ;

По запросу
№ 555
9,5х7,5
50 м2
Проект Дома Ц-531 КОМПЛЕКТАЦИЯ: фундамент + КРОВЛЯ МЕТАЛЛОЧЕРЕПИЦА

- Проект;
- Фундамент: жб забивные сваи 200*200*3м;
- Оцилиндрованное бревно 220мм;
- Кровля металлочерепица Grand Line 0,45 мм;
- Доставка;
- Монтаж

от 4 112 850
№ 531
9,5х8
133 м2
Дом из оцилиндрованного бревна Ц-524 КОМПЛЕКТАЦИЯ: фундамент + КРОВЛЯ МЕТАЛЛОЧЕРЕПИЦА

- Проект;
- Фундамент: жб забивные сваи 200*200*3м;
- Оцилиндрованное бревно 240мм;
- Кровля металлочерепица Grand Line 0,45 мм;
- Доставка;
- Монтаж

от 5 387 550
№ 524
12,5х9
147 м2

Мы используем файлы cookie, а также сервис веб-аналитики Яндекс.Метрика для улучшения работы сайта, анализа трафика и персонализации контента. Продолжая использовать данный сайт, вы даете на это свое согласие. Если вы не хотите использовать файлы cookie, отключите их в настройках браузера.

Подробную информацию можно получить, нажав «Узнать больше».